电子监控设备规范应用 视频监控前端建设规范(立杆+设备箱+布线+取电+防雷接地)

小编头像

小编

管理员

发布于:2025年05月02日

109 阅读 · 0 评论

视频监控前端建设规范(立杆+设备箱+布线+取电+防雷接地)

视频监控前端点位建设主要包括了立杆建设、设备箱建设、前端布线、前端取电及实施和防雷接地。

一、立杆建设

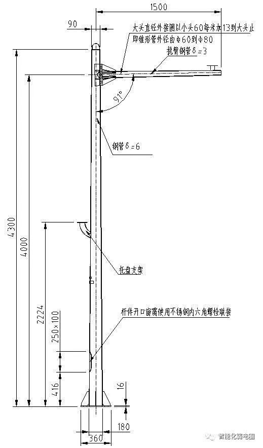
立杆用于监控摄像机及治安卡口设备的安装,根据实现的功能不同,立杆的形式不一,监控立杆按照高4-6米横臂1-3米,选择热镀锌喷塑钢管。在横臂上安装专用避雷针,选择合适位置安装避雷针使得摄像机和设备箱均在避雷针的保护角范围之内,从而对摄像机和设备箱内设备进行直击雷保护。避雷针下引线与防雷接地体连接为一体,立杆整体设计符合国标及行业标准的要求。

1、监控立杆

室外摄像机不仅能够有宽阔的视野和俯瞰效果,而且图像稳定,不产生机械抖动。监控杆件分为不同规格,根据现场环境设置不同高度的杆件。监控摄像点安装在十字路口或道路边时,需考虑到道路行车安全。在杆件上配置抱杆箱以便于网络等设备安装。立杆的设计安装目标除考虑日晒雨淋抗腐蚀性外,还考虑了减少迎风面积和抗震抖动因素,显示画面不会抖动。

根据所需监控的范围、角度、场景以及现场条件来选择摄像机的安装方法,由于大部分监控的地点都在道路或室外公共场所,摄像机的安装固定以立杆为主。

立杆采用锥型热镀锌管,下底部的管径180mm,上部管径90mm,管壁厚度6mm。立杆应做灌筑基础,采用标号不小于C25的商品混凝土,基础深度不小于1400mm。立杆高度适宜。

独立立杆,杆在装好摄像机后在≤6级风时不晃动,摄像机的输出图像不抖动;

所有的电源、交换设备、防雷器等前端辅助设备都安装在设备箱内,内部安装架的设计充分考虑设备的安装位置,同时具有防雨、防尘、防高温、防盗等功能。

2、地笼

每根立杆配备一个地笼。地笼含地笼骨架、镀锌扁铁、接地桩、通线管和接地电缆。

二、设备箱建设

1、监控前端设备箱安装

箱体采用1.2mm的不锈钢板,整体喷塑,然后丝印标志和文字。箱体技术要求如下:箱体的宽×高×深为500mm×400mm×250mm;一个箱体配备两个抱箍;箱体内部安装铝板,铝板上打孔攻丝,所有设备安装在安装铝板上;提供箱体内部安装设备的安装附件和安装螺钉;箱体安装防水锁,所有锁芯统一钥匙;整箱防水,箱门内侧粘有密封条,其密封条宽度应大于10mm,并具有一定的厚度,保证箱门的密封性良好;箱体外部丝印标志和文字。

避雷器、空气开关、网络设备、电源适配器安装在同一个设备箱内。考虑到设备安全和维修方便,同时防止人员随手破坏,设备箱安装于监控立杆距地面2.5m处。

设备箱内安装一个防雷器和两个接地柱。两个接地柱分别为电源接地和防雷接地,接地柱通过接地铜线连接到接地镀锌扁铁上。

2、机箱内布线

监控点所用网线规格为CAT5E国标线,此线用于摄像机-避雷器-网络设备之间的网络接口连接。

强电线路和弱电线路通过不同的穿线孔从杆体内穿入设备箱内,设备箱内强电、弱电分别通过隔板两端的专用穿线孔进行穿线,穿线孔距离符合安全距离要求。线端的标识依据统一编码规则做好永久标签。

三、前端布线

电缆沟深度以电缆穿线套管埋置后其顶部距路面的距离≮450㎜为准。

电缆沟尽量平直,或略呈倒“U”字型。电缆沟底部要求平整,所有碎屑清理干净并填上50~80㎜的细软沙土。不设窨井的拐弯处线管的圆角半径(R≮20D。㎜,D。为电缆外径),且线管转向圆滑、流畅。

机动车道的电缆沟修复用25#以上的混凝土修复,修复后的高度高出0~5㎜,

行人道和绿化带上的电缆沟,按原地貌修复。使用硬质塑料管做电缆管时,管的周围有30~50㎜的混凝土的保护层。

杆件与控制机箱旁、电缆拐弯处、电缆管直线长度超过60米时,或两端电缆管不在同一平面相距100㎜以上时,设置窨井。窨井的井底中心位置垂直埋置一段200㎜的2寸镀锌管,作为渗水孔用;窨井四壁及底部(除渗水孔外)批荡水泥沙浆。渗水孔面略低于底部5㎜以方便渗水。

四、前端取电及实施

一般采取就近取电的方式为前端设备来进行供电。各摄像机终端在就近的公共供电网络(如路灯供电网、周边住宅等)取一路220V 市电,市电经加装独立电表,与主干线路隔离并引到设备箱使用,保证了引入部分电源线路的漏电及防雷防护。所有供电线路在管道中间不允许有任何接头。

主干线路通过立杆下端的接线井送入到安装在立杆上的设备箱内,如不是主干线路路由终点,主干线路从设备箱内迂回接线井并往下一监控点续传。所有接线在设备箱内完成,接线井内不留供电线路的接线头,以保证用电安全。供电线路做好标签(标牌),内容明确本段供电线路“源头”和“去向”。标签设置在设备箱内,标牌设置在接线井内,标牌防腐蚀性强,具有永久标识特性。

取电线路接入设备箱内空气开关电源的输入端,空气开关电源输出端接二合一避雷器(避雷器)的电源输入端,避雷器电源输出端再接各电源适配器,适配器连接各类设备。通过避雷器的电源接口过度后再连接各类电源适配器的目的是将电源适配器和设备置于避雷器的保护之下。

安装在同一位置的数个前端摄像的供电由设备箱统一供电,而设备箱采用就近取电的供电方式。

五、防雷接地

严格执行国家的有关标准和规范,立杆防雷接地电阻≦10Ω,接地网布置依据地形进行设计。立杆的基础由钢筋网加混凝土构成,首先用三根Ф50毫米的钢管或50*50*5mm的角钢作为接地极,同时用镀锌扁钢把四根接地极焊接形成接地网的一部分,再此接地网与法兰盘进行焊接,钢管或角钢经过热镀锌工艺处理,以增加抗腐性能和提高其导电性能。

当土壤电阻率太高而不能满足要求时,采用垂直接地极+减阻剂的方法使地网接地电阻符合要求,确保接地电阻小于10Ω。,垂直接地体可采用热镀锌角铁或热镀锌圆钢,水平接地体采用镀锌扁钢,以防止接地体受潮腐蚀后造成接地电阻漂移。

接地施工时如监控点附近有符合要求的良好接地体,最好能将监控点接地点与其连接,增强接地效果。

使用立杆安装的摄像机,在监控立杆横臂上安装避雷针,对设备进行直击雷保护,避雷针下引线和接地引线可连接到一起,接入到接地体上。在设备箱安装铜质接地排通过直径为16mm2软质铜绞线连接接地体,设备箱内设备信号通过二合一避雷器进行防雷保护。

所有设备包括:摄像机、避雷器等的金属外壳、设备接地端子、空开漏保接地端子,线缆屏蔽层均可靠连接到设备箱的接地铜排上,施工时确保设备箱的接地铜排与接地体有效紧固连接。

视频监控系统常用标准规范解读,新人必学内容!

大家好,我是薛哥。最近有刚入行的新人咨询我视频监控系统都有哪些国家标准规范,每个标准规范都有哪些要求,今天就汇总一下监控系统常用的标准规范,从设计、施工到验收都有,重点列举了需要考虑的要求,非常的不错,大家看一下。

此套完整的PPT方案,VIP会员下载!

最新精品资料介绍

这套弱电资料,汇总了大量的技术文档,313个PPT方案,279个标准规范,60个设计方案,119份图纸素材,8套施工图纸,20套工程量清单,20个施工组织设计,69份visio拓扑图及图块,54个excel表格,完整的施工过程文档及验收文档等等,非常的全面。

相关问答

住建部对电梯装 监控 的规定?

有关监控摄像头的安装问题并无专门部门负责,暂时还没有国家相关的法律政策约束。只有一些有关的行业规定对是否安装监控摄像头的问题做了申明。例如《GB50395...

公安机关 监控 电脑需要什么手续_法律问答—华律网

[回答]在正常情况下,公安部门为确保电脑监控行动符合法律规定,往往会遵循严谨而规范的法律途径和程序来启动这项工作。首先,他们需要根据具体案件进行精确...

本人刚到建筑公司工作,现需起草 监控 施工安全 规范 ,但不清楚...

亲,你需要的是哪种监控施工安全规范?有安防监控施工安全规范、弱电监控施工安全规范、基坑及支护监控施工安全规范等。亲,你需要的是哪种监控施工...

监控设备 管理制度是什么?

监控室规章制度为了加强闭路电视监控系统操作室的管理,确保监控系统的正常使用和安全运作,充分发挥其作用,特制定本规则。监控室值班登记制度一、监控人...2...

监控 电视墙 规范 ?

1需要根据具体情况进行设计和安装。2的原因是为了确保监控系统的有效运行和监控效果的最佳化。规范的设计可以提供清晰的监控画面,方便监控人员进行观察和分...

监控 强电与弱电布线有什么要求 - 徐烨 的回答 - 懂得

安规范来讲监控强电与弱电要分开尤其绝对不要和强电电缆一起,不过给监控设备供电的电源线不必那么严格的做要求。给监控设备供电的电源线通常也是走...

罐区摄像机的安装高度应可 监控 到储罐顶部?-盖德问答-化工人...

呵呵,可以在罐区附近找个高点儿的地方装个高清变焦带云台的探头,不就全覆盖了。要实在找不着高点,单独立个杆子顶上顶个摄像头,总觉得不保险,这玩...

银行 监控 录像保存时间的法律规定_在线咨询法律团队—华律网(...

安防监控行业不同场所要求也不一样,有的强制规定保存1个月,银行级别比较高,所以...保安服务中安装监控设备应当遵守国家有关技术规范,使用监控设备不得侵犯他人...

驾驶员考试 监控 管理制度..._驾驶员_帮考网

具体内容包括:1.考试监控设备的规范使用:考试场地应当配备监控设备,确保考试全程实时监控,并对监控设备的使用和维护进行规范管理。2.考试人员的...

谁有小区 监控设备 安装流程?

小区监控设备安装流程一般包括以下几个步骤:首先,需要进行规划,确定监控设备的种类、数量、安装位置等;其次,进行设备采购,选择合适的监控设备,并购买相...

标签:

相关阅读